| 251 Vues | Par Générations Piolenc

Création salle omnisports Piolenc : un projet d'avenir

Dans le cadre de l'élection municipale de 2026, Générations Piolenc, dirigée par Sébastien Payan, propose un projet ambitieux et fédérateur : la création d'une salle omnisports à Piolenc. Cet équipement moderne vise à rassembler les habitants autour du sport et des activités sociales, tout en répondant à un besoin croissant d'infrastructures adaptées dans notre commune.

Un projet sportif pour toutes les générations

Le sport est un formidable vecteur de lien social et de bien-être. Pourtant, Piolenc manque aujourd'hui d'infrastructures suffisantes pour accueillir la diversité des pratiques sportives souhaitées par les habitants. C'est pourquoi Générations Piolenc place la création d'une salle omnisports au cœur de son programme municipal.

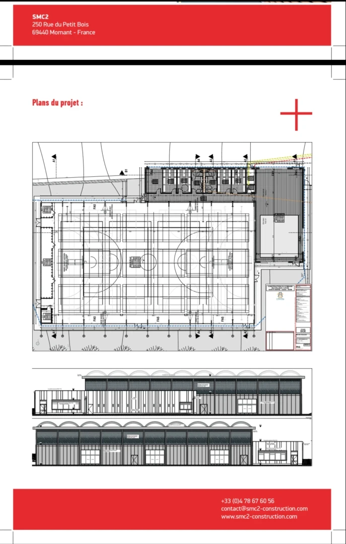
Cette nouvelle infrastructure permettra d'accueillir de nombreuses disciplines sportives, qu'elles soient individuelles ou collectives. Parmi les activités envisagées, on retrouve le volleyball, le basketball, l'escalade, le handball, le badminton, mais aussi un dojo pour les arts martiaux et une salle de gymnastique. De quoi satisfaire tous les âges et tous les niveaux de pratique, des enfants aux seniors !

Un investissement réfléchi et réaliste

La création d'une salle omnisports représente un investissement conséquent, estimé entre 2,5 et 3 millions d'euros. Conscients de l'ampleur du projet, nous avons élaboré un plan de financement solide et responsable, associant plusieurs sources de financement :

  • Des subventions de l'État, de la Région, du Département et de l'Agence Nationale du Sport (ANS)
  • Une part du budget communal, dans le respect des équilibres financiers de la commune
  • Des partenariats locaux pour optimiser les coûts

Ce projet n'est pas une promesse en l'air : il repose sur des études de faisabilité et des rencontres concrètes avec des professionnels du secteur. Lors du Salon des Maires, nos représentants ont eu l'occasion d'échanger avec des prestataires spécialisés, qui nous ont présenté des réalisations similaires déjà abouties dans d'autres communes. Ces modèles constituent une base solide et inspirante pour notre projet à Piolenc.

Un équipement moderne et bien pensé

Au-delà de la salle elle-même, Générations Piolenc a pensé à tous les aspects qui feront de cet équipement un lieu agréable et sécurisé pour tous. Le projet prévoit notamment :

  • Un parking végétalisé et ombragé, pour concilier besoin de stationnement et respect de l'environnement
  • Une vidéoprotection du parking et des abords, pour renforcer la sécurité des usagers
  • Des espaces conviviaux permettant aux familles de se retrouver avant ou après les entraînements
  • Une conception bioclimatique pour limiter l'empreinte énergétique du bâtiment

Ces aménagements répondent à notre volonté de valoriser l'environnement local tout en offrant un cadre fonctionnel et accueillant aux Piolençois.

Le développement de nouvelles associations sportives

La création de cette salle omnisports ne se limitera pas à un simple bâtiment : elle sera le catalyseur d'une véritable dynamique associative à Piolenc. En offrant des infrastructures adaptées, nous permettrons la création de nouvelles associations sportives et le développement de disciplines jusqu'alors peu présentes dans notre commune.

Ce projet favorisera l'engagement bénévole, renforcera le tissu associatif local et créera de nombreuses opportunités pour les jeunes comme pour les moins jeunes de pratiquer une activité physique régulière. C'est aussi un excellent moyen de redynamiser la vie du village, l'une des priorités fondamentales de Générations Piolenc.

Une approche pragmatique et participative

Fidèle à notre philosophie, ce projet sera élaboré avec les habitants, pas pour les habitants. Nous croyons fermement à la participation citoyenne et au dialogue. Avant sa concrétisation, nous organiserons des temps d'échange pour recueillir vos idées, vos besoins et vos attentes concernant cet équipement.

Les associations sportives existantes, les parents d'élèves, les éducateurs et tous les Piolençois intéressés seront invités à contribuer à la réflexion. Cette démarche garantira que la salle omnisports réponde véritablement aux besoins du territoire et qu'elle soit pleinement appropriée par la population.

Un projet d'avenir qui rassemble

La création d'une salle omnisports à Piolenc s'inscrit parfaitement dans les quatre piliers du programme de Générations Piolenc : elle permettra d'adapter la capacité d'accueil pour les activités extrascolaires et sportives, de redynamiser la vie du village en créant un nouveau lieu de rencontre, de renforcer la sécurité grâce à des aménagements adaptés, et de valoriser l'environnement par une conception respectueuse du cadre de vie.

C'est un projet ambitieux mais réaliste, un projet qui rassemble toutes les générations autour de valeurs communes : le partage, le dépassement de soi, la convivialité et la solidarité. Un projet qui, nous en sommes convaincus, marquera durablement l'identité sportive et sociale de Piolenc.

Avec Générations Piolenc et Sébastien Payan, nous construisons ensemble un avenir qui rassemble. La création de cette salle omnisports en est l'une des pierres angulaires, un symbole fort de notre engagement pour une commune dynamique, solidaire et tournée vers l'avenir.

Les photos d'illustration présentées sont des réalisations déjà abouties par notre prestataire dans d'autres communes. Elles sont proposées à titre d'exemples pour donner une idée concrète du type d'équipement envisagé et des niveaux de budget correspondants.